令和08年2月20日 15時19分 更新
次回更新予定日:令和8年2月21日
JR山手線 駒込駅の 売買物件詳細情報
◆かんたん1分!無料希望条件登録メールで物件情報リクエスト◆
ご希望の物件がございましたら、お電話でもお気軽にお問い合わせください。
03-6379-1915
HP公開数
92件
登録物件数
3880件
02/20 株式会社気になる家 物件更新情報!
トップページへ
お問い合わせ
物件番号
Bz4581
種目
マンション
価格
2,600万円
坪単価
年間収入
107.88万円
利回り
4.14%( 表面 )
交通
JR山手線 駒込駅 徒歩5分
南北線 駒込駅 徒歩3分
所在地
豊島区駒込1丁目
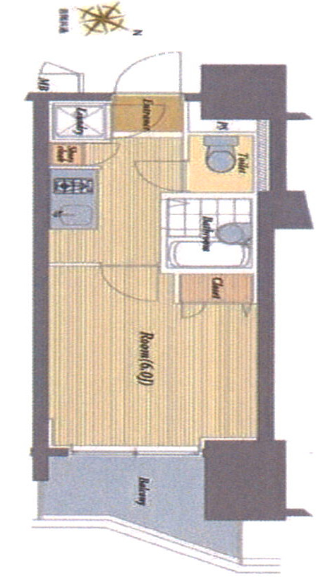
建物面積
20.07m
2
( 6.07坪 )
土地面積
地目
用途地域
土地権利
所有権
建ぺい率
容積率
現況
賃貸中
築年月
H20/11
建物構造
鉄筋コンクリート造
階/階建
地上13階建
総戸数
47戸
引渡時期
相談
取引態様
仲介
都市計画
セットバック
接道
特色
オーナーチェンジ、オートロック、エレベータ、宅配ボックス、防犯カメラ、クローゼット、バス・トイレ別
Webコメント
詳細
ローンを組むにあたり、月々の返済額をシミュレーションします。
物件価格
2,600 万円
頭金
万円
内ボーナス
万円
金利
%
借入期間
年
※「元利均等返済」で算出しています。
※ 金利は変動金利を採用しています。
※ シミュレーションでの結果は、あくまでも目安で、概算になります。
実際にローン契約をする際は、詳細等は当社にご確認ください。
※ 実際のローン契約時には諸費用・税金(手数料や印紙税、保証料など)が
別途かかりますので、契約の際にご確認ください。
月々の返済額
掲載されている物件データが現況と異なる場合は現況を優先します。
*利回りは、1年間の賃料収入を購入価格で除して求めたものです。
*表示の賃料収入が将来にわたり確実に得られる保証はございません。
*利回りは、公租公課・共益費等、当該物件を維持するために必要な費用を控除する前の収入で 計算しています。
■関連の沿線・駅名から検索■
物件一覧
--
JR山手線 駒込駅
--
間取一覧
--
写真一覧
物件一覧
--
南北線 駒込駅
--
間取一覧
--
写真一覧
■カテゴリから検索■
オーナーチェンジ
|
仲介手数料無料
|
駒込駅徒歩5分以内中古マンション