令和08年1月9日 15時59分 更新
次回更新予定日:令和8年1月10日
JR山手線 駒込駅の 売買物件詳細情報
◆かんたん1分!無料希望条件登録メールで物件情報リクエスト◆
ご希望の物件がございましたら、お電話でもお気軽にお問い合わせください。
03-6379-1915
HP公開数
89件
登録物件数
3832件
01/09 株式会社気になる家 物件更新情報!
トップページへ
お問い合わせ
物件番号
Bm4528
物件名
東高西ケ原ペアシティ202号
価格
5,980万円
交通
JR山手線 駒込駅 徒歩13分
京浜東北線 上中里駅 徒歩5分
所在地
北区西ケ原1丁目
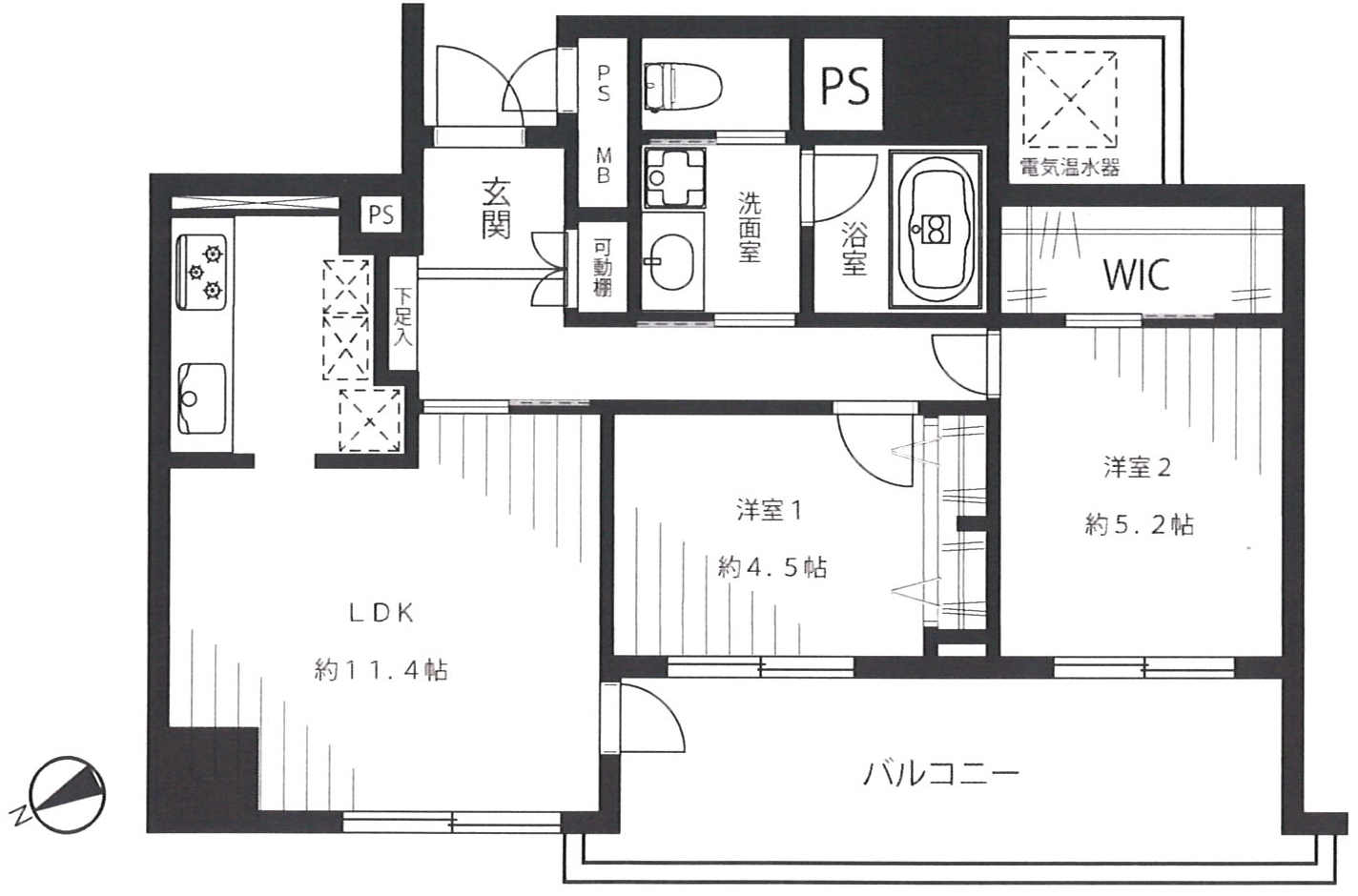
専有面積
63.8m
2
( 19.29坪 )
間取
2LDK
総戸数
74戸
階/階建
2階/地上14階 地下1階建
管理費
16,880円
修繕費
6,380円
駐車場
空無
駐車場月額
構造
鉄骨鉄筋コンクリート造
用途地域
第一種低層住居専用地域
バルコニ方向
北西
取引態様
仲介
築年月
H04/11
引渡時期
即時
管理形態
全部委託
現況
空家
学区
バルコニ面積m
2
(坪)
13.06m
2
( 3.95坪 )
特色
ペット飼育可、リノベーション済、オートロック、アフターサービス保証付、ウォークインクローゼット、クローゼット、フローリング、エレベーター、都市ガス
Webコメント
詳細
ローンを組むにあたり、月々の返済額をシミュレーションします。
物件価格
5,980 万円
頭金
万円
内ボーナス
万円
金利
%
借入期間
年
※「元利均等返済」で算出しています。
※ 金利は変動金利を採用しています。
※ シミュレーションでの結果は、あくまでも目安で、概算になります。
実際にローン契約をする際は、詳細等は当社にご確認ください。
※ 実際のローン契約時には諸費用・税金(手数料や印紙税、保証料など)が
別途かかりますので、契約の際にご確認ください。
月々の返済額
掲載されている物件データが現況と異なる場合は現況を優先します。
■関連の沿線・駅名から検索■
物件一覧
--
JR山手線 駒込駅
--
間取一覧
--
写真一覧
■カテゴリから検索■
仲介手数料無料
|
ペット飼育可
|
リフォーム済マンション
|
中古マンション